Ionela Oancea
pe site din 18 Iul
activ: 10 Feb 2026 21:14












96.500 eur
Companie
Descriere anunt
ID Intern:6859
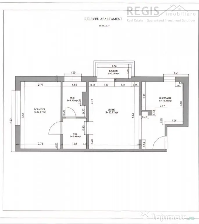
REGIS Imobiliare va propune spre vanzare un apartament de 2 camere, semidecomandat, situat intr-una dintre cele mai cautate si linistite zone din Brasov ndash; zona Gemenii.
Locuinta are o suprafata utila de 50 mp si este pozitionata la etajul 4 din 4, oferind intimitate, liniste si o priveliste placuta asupra imprejurimilor verzi.
Apartamentul se remarca prin faptul ca este complet renovat, mobilat si utilat modern, fiind pregatit pentru mutare imediata, fara a necesita investitii suplimentare. Beneficiaza de izolatie termica atat pe exterior, cat si pe interior, asigurand un confort termic ridicat si costuri reduse la intretinere.
Compartimentarea este moderna si eficienta, cu un design open space care ofera senzatia de spatiu si luminozitate:
-hol de acces
-living generos, deschis cu bucataria complet utilata
-balcon inchis, integrat in zona de living
-dormitor confortabil
-baie
Un avantaj important il reprezinta locul de parcare concesionat de la primarie, un beneficiu extrem de valoros in aceasta zona.
Zona Gemenii este recunoscuta pentru liniste, acces facil catre puncte de interes si numeroase spatii verzi, fiind ideala atat pentru locuit, cat si pentru investitie.
Acest apartament este alegerea perfecta pentru cei care isi doresc confort, un spatiu modern open space si o locuinta gata de mutare intr-o zona excelenta a orasului.
Comisionul agentiei este de 2% tva din pretul de tranzactionare.
Pentru informatii suplimentare sau programarea unei vizionari nu ezitati sa ne contactati.
Vlad - Agent Imobiliar
Confort: 1
Tip imobil: Bloc de apartamente
Număr Băi: 1
Posibilitate parcare: Da
Nr. locuri parcare: 1
Specificații
Suprafață utilă (m²)50
An constructie1977
Numar Camere2CompartimentareSemidecomandat
Etaj4
Mobilat/Utilat1
Număr niveluri imobil4
ID: 16817507
Contactează vânzătorul
Companie
Ionela Oancea
pe site din 18 Julactiv:
Nu există recenzii
Mai multe anunțuri ale utilizatorului
Brasov, Brasov
Despre companie
Loading ad...
Contactează vânzătorul
Companie
Ionela Oancea
pe site din 18 Julactiv:
Nu există recenzii
Loading ad...
Vezi mai multe anunturi ale acestui vânzator
Toate anunturileAnunturi similare
















































































































































































































































































































































































